• <tt id="4k8kk"></tt>
    <tt id="4k8kk"></tt>
    <tt id="4k8kk"></tt>
  • <tt id="4k8kk"><rt id="4k8kk"></rt></tt>
    <tt id="4k8kk"></tt>
  • <li id="4k8kk"><tt id="4k8kk"></tt></li>
  • <li id="4k8kk"><tt id="4k8kk"></tt></li>
  • <li id="4k8kk"></li>
    語言選擇
    簡體中文   English
    咨詢熱線
    400-629-1299
    一、產品特點及工藝結構參數

    產品特點
    * 機電一體化結構;
    * 采用內燃式燃燒機理,燃氣、空氣混合均勻,燃燒完全,點火易,升溫快;
    * 高效節能低噪音風機;
    * 自動調節比大;
    * 控制系統運行安全可靠。

    工藝參數
    * 然氣壓力:5-50Kpa
    * 然氣熱值:8500-10000Kcal/N
    * 然氣密度:0.75-1kg/N

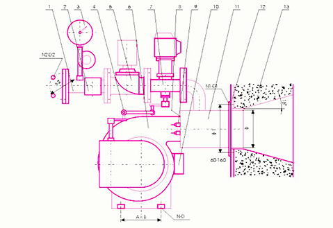
    1.固定法蘭 2.點火變壓器 3.點火電磁閥 4.液化氣點火槍 5.手動閥 6.風機  7.燃燒頭8.觀火窗 9.火焰探測器 10.風氣聯調器 11.電動調節閥 12.氣動切斷閥 13.煤氣管件
    14.膜合壓力表 15.煤氣壓力開關 16.排污閥

    技術參數 注:設備支持定制,若無您想要的型號,請聯系客服咨詢詳情

    型號 Φ Φ1 N1—D1 Φ2 N2—D2 A×B N—d 風機 配鍋爐
    ZT80 Φ195 Φ250 4—Φ14 Φ100 4—Φ18 260×120 4—Φ14 2.2KW 1t/h
    ZT160 Φ270 Φ325 4—Φ14 Φ110 4—Φ18 280×145 4—Φ14 3KW 2t/h
    ZT320 Φ340 Φ390 6—Φ14 Φ145 4—Φ18 380×190 4—Φ14 7.5KW 4t/h
    ZT400 Φ377 Φ428 6—Φ14 Φ160 4—Φ18 440×220 4—Φ14 11KW 5t/h
    ZT480 Φ420 Φ470 6—Φ16 Φ160 4—Φ18 440×220 4—Φ14 11KW 6t/h
    ZT640 Φ480 Φ530 6—Φ16 Φ180 8—Φ18 480×245 4—Φ18 18.5KW 8t/h
    ZT800 Φ510 Φ560 8—Φ16 Φ180 8—Φ18 2—265×265 6—Φ18 30KW 10t/h
    ZT1200 Φ550 Φ600 8—Φ18 Φ210 8—Φ18 2—290×280 6—Φ18 37KW 15t/h
    ZT1440 Φ600 Φ650 8—Φ18 Φ240 8—Φ23 2—290×280 6—Φ18 37KW 18t/h

    設備訂購須知

    歡迎致電咨詢設備優惠報價:153 2496 1622 (微信同號)

    相關案例

    好項目不容錯過,為您推薦更多相關新聞

    在線留言咨詢

    我們會第一時間回復您!一對一私人定制

    留電咨詢,我們將24小時給予回復,謝謝

    *為了您的權益,您的隱私將被嚴格保密

    在線留言咨詢 留電咨詢, 我們將快速給予回復, 謝謝

    *為了您的權益,您的隱私將被嚴格保密

    鄭州鼎力新能源技術有限公司 豫ICP備14018430號-9

    国产一本到在线视频观看